Baugrundstück, gutes Geschäft! -Verkauf im offenen Bieterverfahren-

Lage: 96114 Hirschaid / Erlach | | Bayern
Titelbild
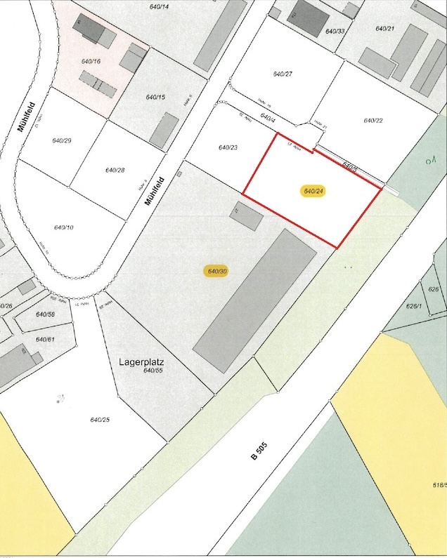
Lageplan
Lukas Hinsche

Beschreibung

Schönes Gewerbegrundstück in verkehrsgünstiger Lage mit optimaler Nah- und Fernanbindung.

Mit einer Grundstücksgröße von ca. 2.915 m² bietet diese Liegenschaft vielfältige Nutzungsmöglichkeiten.

Besonders interessant ist die Option, das Grundstück als Reservefläche für die angrenzende, ebenfalls zum Verkauf stehende, bebaute Fläche zu erwerben.

Alternativ kann die Fläche auch unabhängig davon eigenständig genutzt werden.

OFFENES BIETERVERFAHREN:

Das Grundstück wird im offenen Bieterverfahren verkauft. Den Interessenten steht es frei ein entsprechendes Kaufangebot zu unterbreiten. Die Entscheidung über den Zuschlag für ein Angebot liegt allein beim Verkäufer.
Das Mindestgebot beläuft sich auf 100.000,- €.

Wir freuen auf Ihre Kontaktaufnahme!

Lage und Verkehrsanbindung

Die angebotene Liegenschaft befindet sich in verkehrsgünstiger Lage im Ortsteil Erlach der Marktgemeinde Hirschaid, im oberfränkischen Landkreis Bamberg. Der Standort überzeugt durch seine gute Erreichbarkeit sowie die Nähe zu wichtigen Wirtschafts- und Verkehrsachsen der Region.

Hirschaid liegt strategisch günstig zwischen den Städten Bamberg (ca. 10 km nördlich) und Forchheim (ca. 10 km südlich) und bietet damit einen idealen Ausgangspunkt für Unternehmen mit regionaler wie überregionaler Ausrichtung. Die Anbindung an die Autobahn A73 (Bamberg–Nürnberg) ist in wenigen Minuten erreichbar und gewährleistet eine schnelle Verbindung in die Metropolregion Nürnberg sowie zu den überregionalen Autobahnen A3 und A70.

Der Standort befindet sich in einem gewerblich geprägten Umfeld mit etablierten Unternehmen aus unterschiedlichen Branchen. Dies sorgt für eine solide wirtschaftliche Infrastruktur und Synergieeffekte vor Ort. Gleichzeitig bietet die Umgebung ausreichend Platz für Logistik, Produktion oder Dienstleistungsbetriebe.

Der Bahnhof Hirschaid ist ebenfalls schnell erreichbar und bietet eine gute Anbindung an den öffentlichen Nahverkehr in Richtung Bamberg, Forchheim und Nürnberg. Für Mitarbeiter und Kunden ist somit auch eine komfortable Anreise ohne Pkw möglich.

Die Nähe zu den wirtschaftsstarken Zentren Bamberg und Erlangen/Nürnberg macht den Standort besonders attraktiv für Unternehmen, die von einer hervorragenden Infrastruktur, qualifizierten Fachkräften und einer hohen Lebensqualität profitieren möchten.

Fakten

Objektnummer:
1092-327-lh
Objekttyp:
Grundstück
Grundstücksfläche:
2.915 m²
Verfügbarkeit:
Verfügbar

Preisdetails

Kaufpreis:
100.000,00 €
Vermittlungsprovision:
Ja
Provision:
3,57% inklusive 19% Mehrwertsteuer %

Ansprechpartner

Lukas Hinsche - Immobilienmakler in Paderborn
Anfrage
Max. 500 Zeichen
Ich habe die Datenschutzvereinbarung gelesen und verstanden, und ich stimme der Verarbeitung meiner persönlichen Daten wie darin beschrieben zu. *