Grundstück in zentralger Lage von Wewer!

Lage: 33106 Paderborn / Wewer | | Nordrhein-Westfalen
Grundstück
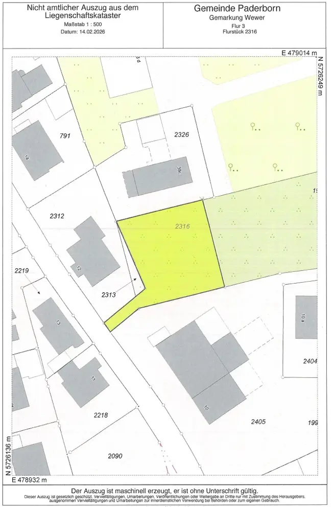
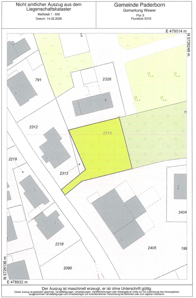
Lageplan Lanfert 12a
Grundstück
Philipp Schlenger

Beschreibung

Zum Verkauf steht ein Wohngrundstück mit ca. 580 m² Fläche – eine ideale Grundlage, um Ihr individuelles Bauvorhaben nach eigenen Vorstellungen zu realisieren. Das Grundstück präsentiert sich als überwiegend ebene, gepflegte Grünfläche und bietet viel Raum für die Planung von Haus, Garten und Außenanlagen.

Der Zuschnitt ist klar erkennbar und eröffnet flexible Möglichkeiten für die Positionierung eines Wohnhauses sowie für die Gestaltung von Terrasse, Stellplätzen oder einem großzügigen Gartenbereich. Ob Rückzugsort im Grünen, Familiengarten oder repräsentative Außenfläche – hier lässt sich Ihr Konzept von Anfang an passgenau entwickeln.

Wichtig zu wissen: Die Zufahrt zum Grundstück erfolgt über ein Wegerecht des Nachbargrundstücks. Das Grundstück ist derzeit unerschlossen; die Herstellung der Anschlüsse (z. B. Strom, Wasser, Abwasser, Telekommunikation) ist vom Käufer zu veranlassen.

Die Bebaubarkeit richtet sich nach einem rechtskräftigen Bebauungsplan. Eine zweieinhalbgeschossige Bauweise ist möglich. Zudem ist eine offene Bauweise vorgesehen – ideal, wenn Sie ein freistehendes Wohnhaus mit großzügigen Abständen und viel Privatsphäre planen. Als Dachform ist ein Satteldach vorgegeben, wodurch sich ein klassisches, zeitloses Erscheinungsbild realisieren lässt. Die Grundflächenzahl (GRZ) beträgt 0,4 und bietet damit einen gut planbaren Rahmen für die Bebauung.

Ob zur Eigennutzung oder als langfristige Investition – dieses Grundstück richtet sich an Käufer, die Wert auf Gestaltungsfreiheit legen. Weitere Details zu den Rahmenbedingungen und den Festsetzungen des Bebauungsplans stellen wir Ihnen gern im persönlichen Austausch zur Verfügung.

Lage und Verkehrsanbindung

Das Baugrundstück befindet sich in Paderborn-Wewer, in einem gewachsenen Wohnumfeld mit guter Alltagsversorgung und kurzen Wegen.

Nahversorgung und Alltag
Für den täglichen Einkauf liegen Edeka und Netto in ca. 200 bis 300 m Entfernung. Ein Bäcker ist ebenfalls in ca. 200 m erreichbar. Ein Paketshop befindet sich in ca. 150 m Nähe, was den Alltag zusätzlich erleichtert.

Familie und Bildung
Mit der Almeschule in ca. 500 m sowie mehreren Kindergärten in ca. 150 bis 400 m bietet die Lage eine praktische Infrastruktur für Familien. Spielplätze sind in ca. 300 m Umgebung vorhanden.

Gesundheit und Versorgung
Ärztliche Versorgung und eine Apotheke sind schnell erreichbar, die Alme Apotheke liegt in ca. 200 m Entfernung. Auch Zahnärzte befinden sich in der direkten Umgebung.

Freizeit und Gastronomie
Grünflächen sind in ca. 500 bis 900 m erreichbar und bieten Raum für Spaziergänge und Erholung. Für den Feierabend liegen Restaurants wie die Pizzeria Zur Mühle in ca. 400 m sowie weitere Gastronomieangebote in der Nähe.

Verkehrsanbindung
Mehrere Bushaltestellen wie Weikenweg und Im Tigg liegen in ca. 100 bis 200 m Entfernung. Die Autobahn A 33 ist über eine Auffahrt in ca. 1,5 km gut angebunden. Der Paderborn Hauptbahnhof ist in ca. 4,5 km erreichbar.

Umfeld in Zahlen
Das Quartier ist überwiegend wohngeprägt und stabil: Die Eigentümerquote liegt bei ca. 55 Prozent, der Leerstand bei ca. 3 Prozent. Mit durchschnittlich ca. 2,2 Personen pro Haushalt und einer mittleren Altersstruktur von ca. 45 Jahren ergibt sich ein ausgewogenes, etabliertes Wohnumfeld.

Fakten

Objektnummer:
1092-314-PS
Objekttyp:
Grundstück
Grundstücksfläche:
580 m²
Verfügbarkeit:
Verfügbar

Preisdetails

Kaufpreis:
261.000,00 €
Vermittlungsprovision:
Ja
Provision:
3,57% Käuferprovision inklusive 19% Mehrwertsteuer %

Ansprechpartner

Philipp Schlenger - Immobilienmakler in Paderborn
Anfrage
Max. 500 Zeichen
Ich habe die Datenschutzvereinbarung gelesen und verstanden, und ich stimme der Verarbeitung meiner persönlichen Daten wie darin beschrieben zu. *